Located at the foot of the volcanic lava flow, at a knuckle in the street pattern of the central city, are Freyberg Place and the Ellen Melville Centre. Together, exploring the overlaps between public art and architecture and offering an open invitation for Aucklanders to inhabit, occupy and claim for themselves.
The square based on artist John Reynolds’ ‘One hundred and eighty-nine steps’ narrative –sees a myriad of intersecting flights of steps applied to the square’s banked edge. The ubiquitous flights of steps found throughout the city are amplified into ‘flows’ that might have cascaded down the slopes of nearby Albert Park, creating a dynamic space for people to sit, rest, talk or watch. The stairs ebb and flow, protruding pointedly out from some angles; nestling in from others. Light diffused by groves of pōhutukawa and nīkau add to the drama, drawing intricate shadows across the steps.
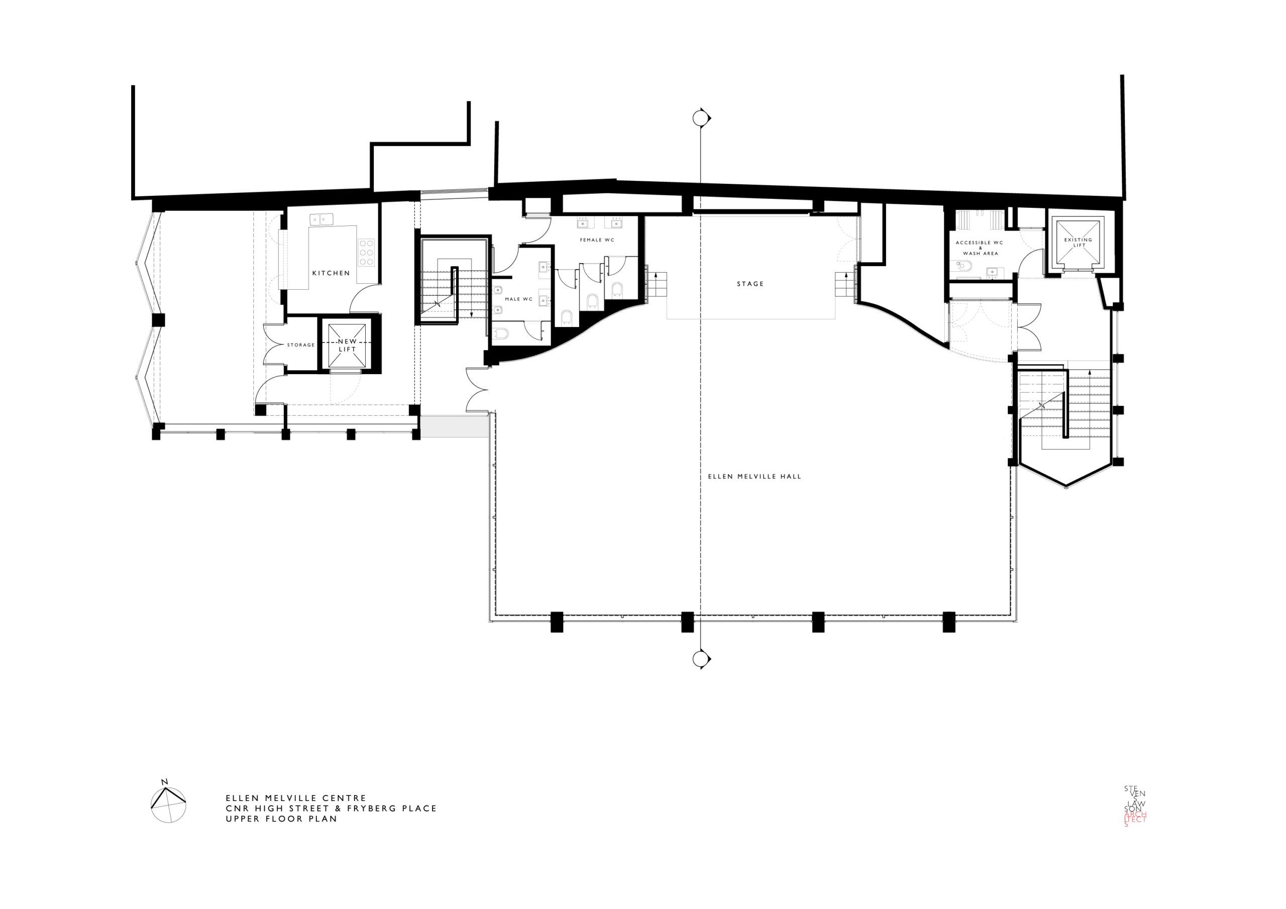
The building designed by Tibor Donner in the 1950’s as the Pioneer Women’s and Ellen Melville Memorial Hall provided a facility for women in the city, opening out onto a sheltered public space extending out from beneath the building. Conceived of as an ‘urban living room’ the renovation sensitively reveals the original architecture and uses – its elegant pilotis and expressed concrete frame drawing the public space seamlessly into the building. Upstairs, beneath the butterfly roof the Ellen Melville Hall has been restored, along with the woven tukutuku panels that line the back wall, delivering contemporary community spaces for the people of the city.
The project is not about the square or the hall, it is about both and the dialogue between. It is about creating a powerful public space in the centre of the city that celebrates its unique place and its history, while pointing towards a contemporary future.


Freyberg Place photographs courtesy of Isthmus and David St George



Freyberg Place photographs courtesy of Isthmus and David St George
Landscape Architect: Isthmus.
Artist: John Reynolds.
Waterfeature artwork: Graeme Tipene Ngati Whatua Orakei.
East wall artwork: Lisa Reihana